381 Maroondah Highway, HEALESVILLE VIC 3777

A solid foundation to build from!

3
3

Located just a few minutes walk from Healesvilles main shopping precinct, local schools and public transport makes this property a very convenient opportunity to begin your real estate journey or add to your portfolio.

• The property is, 1452m2 in a low-density residential zone with all services available.
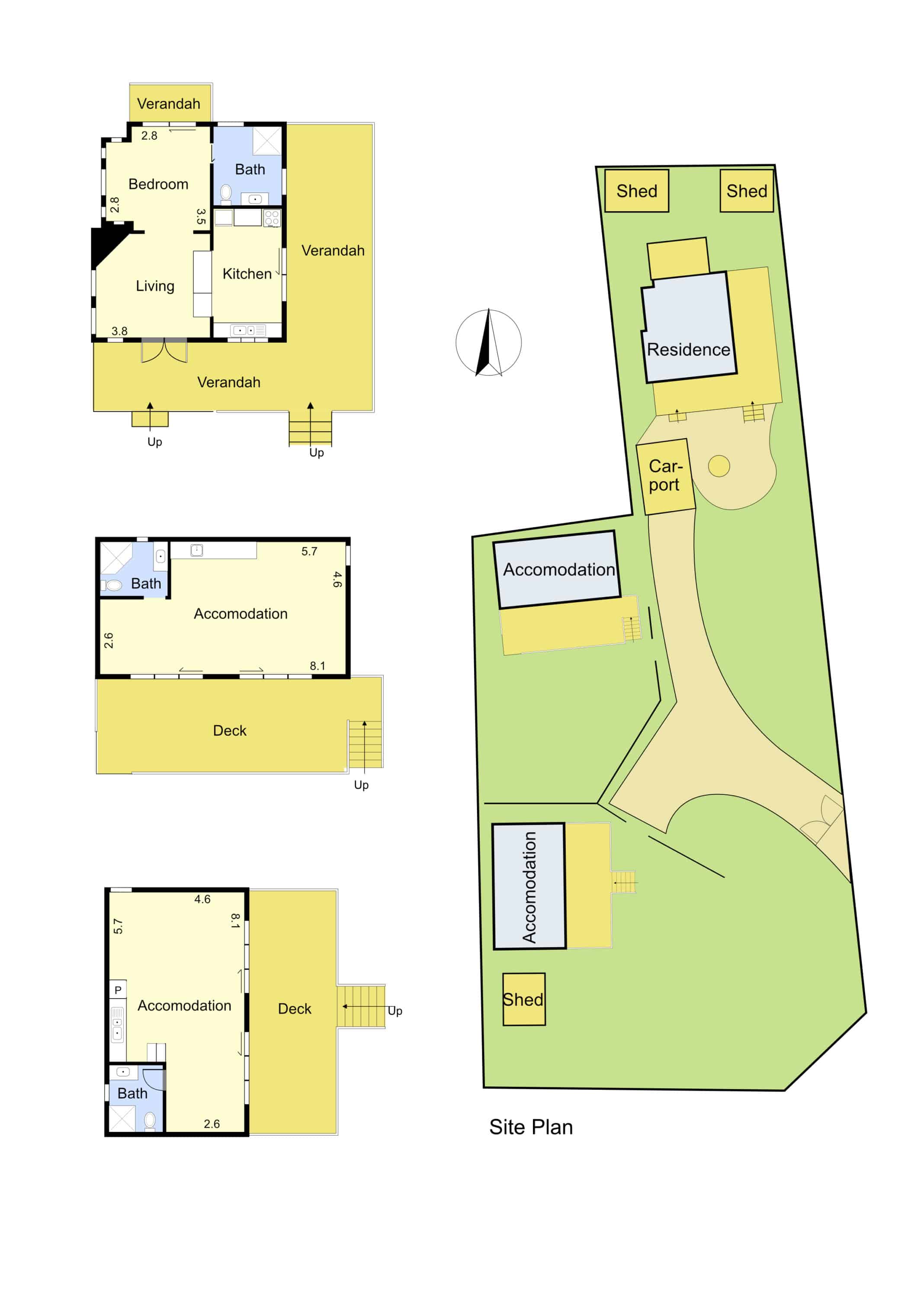
• There are three dwellings on one title, one is for permanent living, the other two are for short term accommodation only.

• The floor and site plan show each dwelling size and location on the allotment
• If you are in the market for doing further improvement and development (STCA) this property should be on your list.

So, take the time to inspect what could be a solid purchase and secure your future in Healesville.

Price Guide

$649,000

Statement of Information
Download PDF
Property Features
  • House
  • 3 bed
  • 3 bath
  • Land is 1,452 m²
  • Deck

Make an enquiry

Would you like to find out more about this property? Get in touch and one of our friendly staff will contact you.

381 Maroondah Highway, HEALESVILLE VIC 3777